7月1日起GB—T17671-2021《水泥胶砂强度检验方法(ISO法)》实施

《水泥胶砂强度检验方法(ISO法)》(GB/T 17671)是水泥质量检验的基础方法,在水泥质量控制中涉及最为广泛,新版《水泥胶砂强度检验方法(ISO 法)》GB/T17671-2021将于2022年7月1日正式实施。
标准前言
新版标准代替GB/T17671-1999《水泥胶砂强度检验方法(ISO 法)》,与GB/T17671-1999相比,除结构调整和编辑性改动外,主要技术变化如下:
更改了范围,增加了本文件不适用的情况(见第1章,1999年版的第1章);
将代用成型设备和振实台并列编写(见5.6.4.2,1999年版的11.7);
更改了抗压强度试验机的要求(见5.6.6,1999年版的4.2.7);
删除了中国ISO 标准砂单级分包装的规定,增加了存放要求(见6.1.3,1999年版的5.1.3);
增加了水泥样品试验前混合均匀的规定(见6.2);
更改了验收试验或有争议时的用水规定(见6.3,1999年版的5.3);
更改了成型、抹平操作(见8.2.1,1999年版的7.2.1);
更改了试体的编号方法(见8.2.1,1999年版的8.1);
增加了试体养护期间在试模上加盖盖板的要求(见9.1);
增加了养护期间换水不超过50%的规定(见9.3);
更改了抗折强度数据的取舍规定(见11.1.1,1999年版的10.2.1);
更改了抗压强度数据的取舍规定(见11.2.1,1999年版的10.2.2);
删除了鉴定实验室的规定,增加了验收试验的规定;更改了对比试验数据的超差处理方法;更改了中国ISO 标准砂的验收方法和程序;增加了中国ISO 标准砂以及代用成型设备的质量报告和内容的规定(见第12章,1999年版的第11章)。
本文件修改采用ISO679:2009《水泥 试验方法 强度测定》。
本文件增加了术语和定义一章。
本文件与ISO679:2009相比做了下述结构调整:
删除了规范性附录A,将有关代用设备和试验步骤的规定纳入正文的相应条款中。
本文件与ISO679:2009的技术差异及其原因如下:
在规范性引用文件中用我国文件替换了国际文件,增加了仪器设备标准,以简化正文中对仪器设备的描述;
在11.1.1中增加了抗折强度的数据处理规定,以明确抗折强度的数据处理方法。
本文件做了下列编辑性改动:
为与现有标准协调,将标准名称改为《水泥胶砂强度检验方法(ISO 法)》。
深度解读
1 与国际标准ISO 679:2009不同点
新标准整体技术内容及文本结构与ISO 679:2009保持一致,其抗压强度检验结果与ISO 679:2009等同,部分操作细节结合我国国情略有调整:
(1) 将8.2脱模中的在水中养护时,用防水墨汁或染料对试体进行编号和做其他标记前移至7.2成型。
我国的现实情况一方面是水泥企业、质量检测机构和用户的试验量远远大于欧美国家,按照ISO 679:2009的规定:试体的编号和标记是在脱模后、入水养护前进行,操作复杂繁琐;另一方面是我国成型后用毛笔编号再人养护箱养护的模式已延续几十年,操作简单。因此,将编号和标记前移。
(2) 在10.1.1结果的计算和表示中增加当三个强度值中有超出平均值±10%时,应剔除后再取平均值作为抗折强度试验结果;当三个强度值中有两个超出平均值±10%时,则以剩余一个作为抗折强度结果。
对于抗折强度结果处理,ISO 679:2009仅给出了结果表征方式,未给出异常值的处理方法。而根据实践,成型试体的抗折强度波动较大,偶尔会出现异常值,需要对异常值进行剔除。因此,新标准给出了抗折强度异常值的剔除方法。
2 与GB/T 17671-1999旧标准相比主要变更内容
// 仪器设备方面
仪器设备质量是实施强度检验方法的根本保证,新强度标准对胶砂搅拌机、振实台和压力机均进行了升级。
JC/T 681《行星式水泥胶砂搅拌机》
主要对设备的减速传动装置、搅拌叶片的联接方式及外观进行了升级:
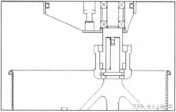
(1) 将减速传动装置由涡轮、蜗杆硬摩擦传动方式改为伺服电机软传动方式,减少了设备噪音、提高了使用寿命。行星式水泥胶砂搅拌机结构变化情况见图。

修订前后行星式水泥胶砂搅拌机结构
(2) 搅拌叶片与叶片传动轴的联接方式由螺纹联接改为偏心联接,同时将定位尺寸增大到40mm,以保证两轴心的绝对重合。此联接方式可随时拆装叶片,便于叶片清洗。偏心链接示意图见图。

偏心连接示意图
(3) 设备外观设计由敞开式改为封闭式,将加砂装置、特别是加砂溜槽内置,同时增加透明有机玻璃防尘罩,减少扬尘。外观实物图变化情况见图。

CONTROLS高效水泥砂浆搅拌设备,具有行星式搅拌功能,以及一个易于装拆的搅拌缸和搅拌器。前格栅开启后,能自动停机保护操作人员,符合CE要求。可以很容易地选择标准速度或用户定义速度(也可搅拌中调整)。内置程序自动按照选择标准进行搅拌,在搅拌过程中也可以通过顶部料斗手动加入沙子。
JC/T 682《水泥胶砂试体成型振实台》
主要从设备的锁紧装置,突头、止动器材质和硬度,摆动臂刚性及降噪处理等方面进行改造升级:
锁紧装置由原来的鹰嘴钩设计改为多杆锁紧机构,更有利于试模的卡紧。多杆锁紧机构示意图见图。
将突头、止动器的硬度提高至≥58HRC,解决了原突头及止动器硬度不够变平或凹陷,导致振幅偏差的问题。
将摆动臂由原A3钢(35号钢)无缝钢管改为刚性较强的A4钢(45号钢),解决了摆动臂材料的刚性不足或配重中心不重合导致振动部分易反弹、重复振动现象。
将隔音罩纳入标准条款,并对隔音棉的材质,尤其是厚度进行了规定,以降低设备噪音。

JC/T960《水泥胶砂强度自动压力试验机》
为缩小与国外自动压力试验机的差距,减少试体破型过程中的人为因素,对设备提出了以下更高的要求:
将压力机的示值精度等级由1级提升为0.5级,意味着水泥胶砂强度测试误差减少1%,对50MPa的强度而言就是0.5MPa。
推荐压力试验机附带可更换水泥抗压强度检验专用压板。
提高对加荷速度的要求,并在压力测量及显示装置中进行补充。
增加了水泥自动压力机立柱及横梁应有足够强度和刚度的要求。

CONTROLS公司PILOT系列压力机作为满足于此标准的检测设备,适合建工建材、科研单位、质量检测中心等行业和部门用以测试砖、石、水泥、混凝土等建筑材料的抗压强度和抗折强度。该设备可实现水泥胶砂抗压和抗折两种功能,操作方便快捷,能极大提高试验效率和准确度。
// 操作方法方面
细化成型刮平操作及注意事项
在成型刮平操作中,增加刮平尺向刮平方向稍斜以及锯割动作的多少和直尺角度的大小取决于胶砂的稠度。较干的胶砂需要多次锯割、直尺尽量水平。但抹平的次数要尽量少的规定。
试体养护条件规定更严谨
(1) 增加了试体养护箱养护期间加盖盖板的要求。
为保证试体养护箱养护期间拌合水不蒸发,箱内相对湿度要求大于90%RH,在实际操作中一般控制不低于95%。如此高的相对湿度,极易造成水蒸气的冷凝,在箱体内顶部或篦子上形成冷凝水,如箱内顶部或篦子不平则易汇集成水滴滴落到试体上,在试体表面形成凹坑的同时相对增加试体拌合水而影响试体强度。因此,新标准增加了加盖盖板的要求以防水滴滴落到试体上,同时要求盖板不能与砂浆接触。
选取两种水泥、成型后养护箱养护时,不同湿度条件,控制试模加盖板且盖板不与砂浆接触、不加盖板为变量验证试验(水泥1为普通硅酸盐水泥,水泥2为矿渣低热水泥),检测结果见表1,2。
表1 3d胶砂抗压强度/MPa

表2 28d胶砂抗压强度/MPa

当养护箱中无滴水现象时,加与不加盖板对同种水泥而言,强度无明显影响,抗压强度绝对偏差(包括3d和28d)基本在0.5MPa以内。这说明新版标准加盖盖板与旧版标准不加盖板所得强度检验结果并不矛盾。无论3d、28d,水泥1加盖板后抗压强度两次均有增加,水泥2则稍有降低:即不同品种,加与不加盖板对强度影响有相反作用。分析原因,影响在于两者泌水性能。水泥l比表面积370-380m2/kg,混合材总量15%左右,具有较低的泌水;水泥2为在水泥1基础上掺大量矿渣水泥,其泌水显然大于水泥1。
(2) 将不允许在养护期间全部换水修订为在养护期间,可以更换不超过50%的水并增加了应安装装置确保养护室的温度均匀。如果在养护室安装了循环系统,风速应尽可能的小,避免形成涡流的规定。
总结
通过对新标准的解读,不难发现随着科技不断进步,自动化、信息化和智能化技术迭代发展,高质量便捷化的仪器设备将成为一种新趋势。同时此次操作方法的变更既遵循了国际标准,又综合考虑了我国实情,相对旧标准更为严谨细致。
新标准发布,为更好地完成标准变更落地,应切实做好新标准的宣贯学习,制定变更计划,提前做好设备升级,注重新旧标准方法的对比检测,确保检测数据准确可靠。
// 参考文献
[1]GB/T 17671-2021, 水泥胶砂强度检验方法(ISO 法)[S].2021.
[2]陈杉,吴安冉. 水泥胶砂强度检验新标准(GB/T 17671)解读[J]. 水泥工程,2021(5):22-24.
*如果您对本文的内容有任何异议,我们尊重您的观点。更多信息,请关注欧美大地。
注明:本文章来源于互联网,如侵权请联系客服删除!
